Aktuálně můžete v lokalitě Brno vybírat z nabídky 47 domů.
Přehled nemovitostí: prodej domy > rodinné domy Zpět na přehled nabídek

RD, Brno - Královo Pole, ul. Sladkovského, ZP 99 m2, v dobrém technickém stavu, v současné chvíli jako restaurace

99 m2

170 m2

osobní

G - Mimořádně nehospodárná

973974

06.03.2026

Cena: 12800000 CZK / objekt
Poznámka k ceně: včetně provize RK 1

Poslat dotaz k nabídce
Zásady používání osobních údajů

Prodejce

Makléř: Ing. Valešová Dana

Telefon: 420 538 ...

E-mail: bonusbr ...

Zobrazit celý kontakt

Nemovitost nabízí

CENTURY 21 Bonus Brno

Křenová 479/71, Brno

www.century21.cz/kancelar-bonus-brno

Zobrazit kontakt na RK

Zobrazit všechny nabídky RK

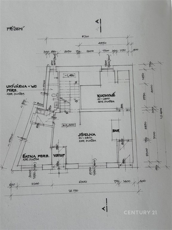
Exkluzivně nabízíme RD, Brno - Královo Pole, ul. Sladkovského, ZP a nádvoří 99 m2. Jedná se o dvoupodlažní budovu, podsklepenou, v dobrém technickém stavu, nyní využívanou jako restaurace. Dispoziční řešení: 1.NP pohostinská místnost, kuchyně, bar, sklad, chodba, zádveří, schodiště, mezipatro: WC muži, WC ženy, 2.NP podkrovní pohostinská místnost, podkrovní pohostinská místnost, schodiště, 1.PP sklad, sklad, úklidová místnost, schodiště. Budova je napojena na všechny sítě, el., plyn, voda, kanalizace. Vytápění objektu: klimatizace LG, WAF jako záložní zdroj. Vhodná investiční příležitost, budovu je možné využít k bydlení i podnikání. Lze zbudovat i více bytových jednotek. V případě prodeje jako restaurace zůstává veškeré vybavení včetně stolů a židlí z masivu (77 míst k sezení).



Nahoru