Makléř: Ing. Valešová Dana
Telefon: 420 538 ...
E-mail: bonusbr ...
Zobrazit celý kontaktTelefon: 420 538 728 645
E-mail: bonusbrno@century21.cz
Nemovitost nabízí
CENTURY 21 Bonus Brno
Křenová 479/71, Brno
www.century21.cz/kancelar-bonus-brno
Zobrazit kontakt na RK737 199 849
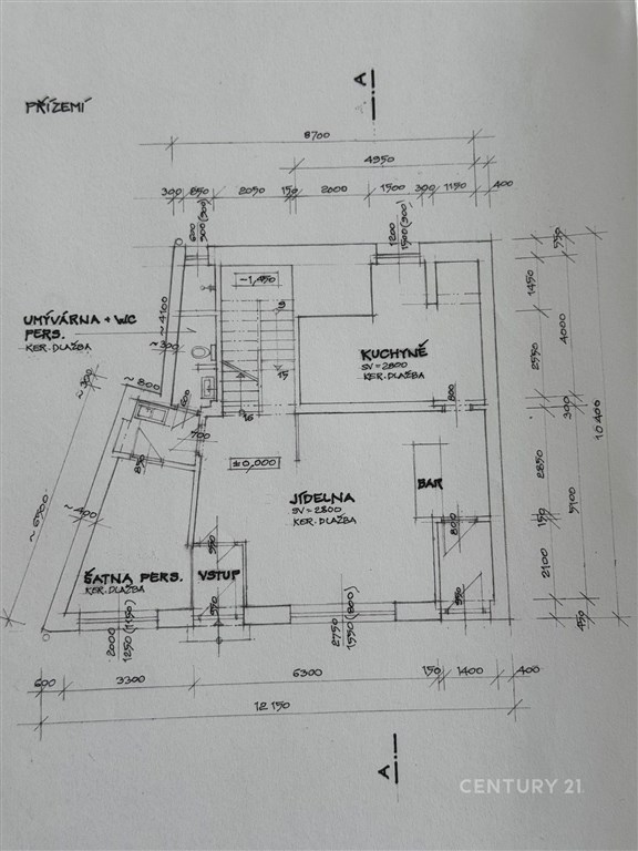
Exkluzivně nabízíme RD, Brno - Královo Pole, ul. Sladkovského, ZP a nádvoří 99 m2. Jedná se o dvoupodlažní budovu, podsklepenou, v dobrém technickém stavu, nyní využívanou jako restaurace. Dispoziční řešení: 1.NP pohostinská místnost, kuchyně, bar, sklad, chodba, zádveří, schodiště, mezipatro: WC muži, WC ženy, 2.NP podkrovní pohostinská místnost, podkrovní pohostinská místnost, schodiště, 1.PP sklad, sklad, úklidová místnost, schodiště. Budova je napojena na všechny sítě, el., plyn, voda, kanalizace. Vytápění objektu: klimatizace LG, WAF jako záložní zdroj. Vhodná investiční příležitost, budovu je možné využít k bydlení i podnikání. Lze zbudovat i více bytových jednotek. V případě prodeje jako restaurace zůstává veškeré vybavení včetně stolů a židlí z masivu (77 míst k sezení).
Prodej rodinného domu s krásným výhledem v Žabovřeskách
Nabízíme Vám možnost koupě prostorného rodinného domu s garáží a zahrádkou. Dům se nachází na klidné ulici žádané městské části Žabovřesky s krásným…
Prodej víceúčelového třípodlažního objektu v části Brno - Žabovřesky s prodejnou, kancelářemi, sklad
Nabízíme ke koupi řadový třípodlažní komerční objekt na ulici Blatného, v klidné a žádané části Brno Žabovřesky, na ul. Blatného. Nemovitost je…