Makléř: Bc. Radim Ouředník
Telefon: 777 197 ...
E-mail: ouredni ...
Zobrazit celý kontaktTelefon: 777 197 791
E-mail: ourednik@veritably.cz
Nemovitost nabízí
veritably s.r.o.
Koperníkova 2409/3, Brno
Zobrazit kontakt na RK
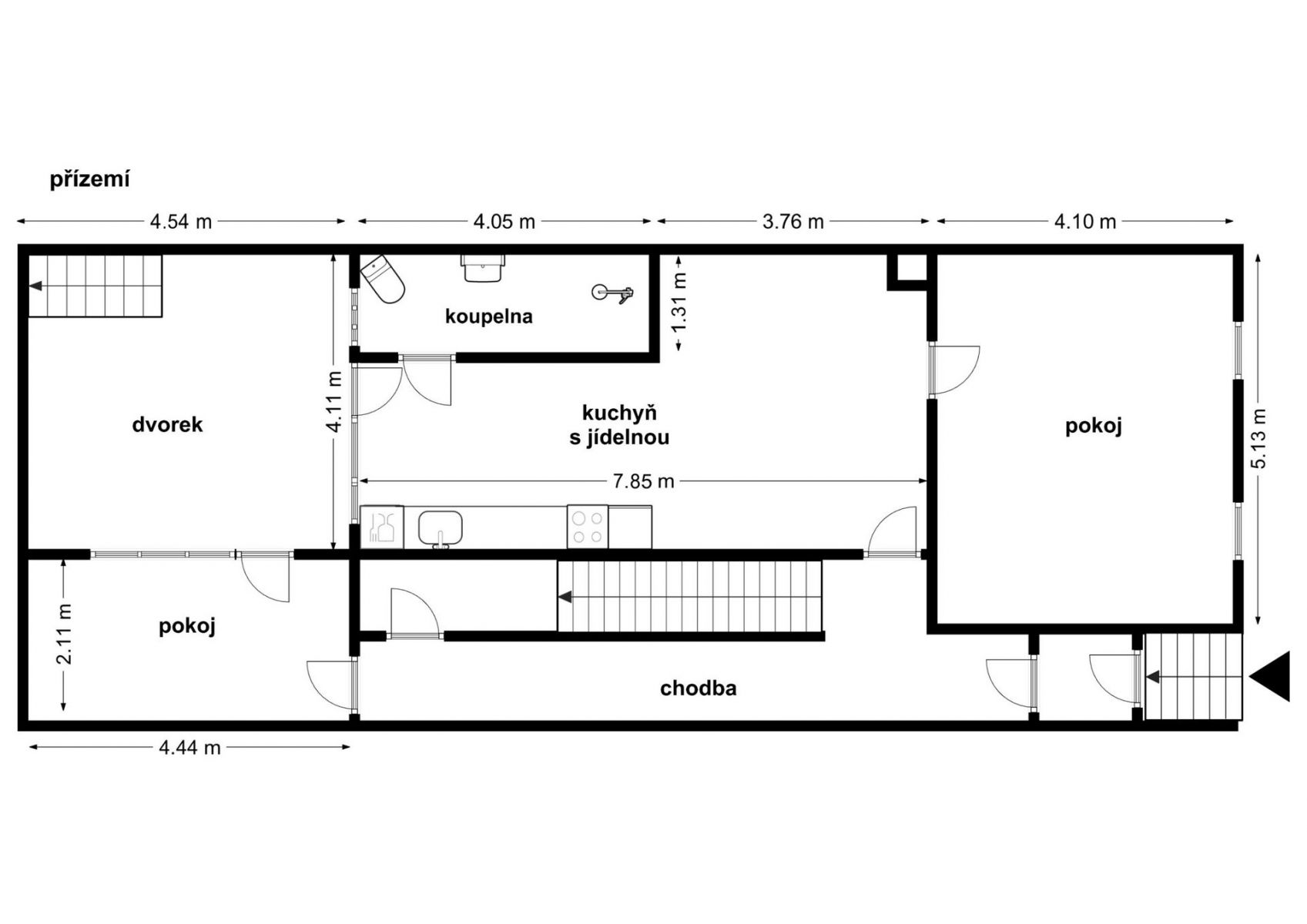
Nabízíme Vám k prodeji řadový zděný třípodlažní rodinný dům nacházející se v Brně v městské části Komín na klidné ulici Závist s velmi dobrou možností parkování nejen v garáži, ale také na vlastním pozemku před domem (2 parkovací místa). Dispozice: suterén - garáž 30.0, přízemí - vstupní chodba 7.7, obývací pokoj 15.4, pokoj 20.9 do ulice (orientace JJZ), jídelna 11.8 s kuchyňskou linkou, výstup na spodní terasu 18.8 (dále je venku skleník 13.5 a horní terasa 18.2 - orientace SSV), koupelna 4.0 se sprchovým koutem, umyvadlem a toaletou, skládek 16.5 m2, mezipatro - kuchyňka, patro - dva pokoje, koupelna s vanou, umyvadlem a toaletou. Nemovité věci budou uvolněny a předány po dohodě s novým majitelem. Prohlídky nemovitých věcí jsou možné po předešlé telefonické domluvě s makléřem v podstatě kdykoli. <a href="https://www.eurobydleni.cz/komercni-nemovitosti/pension/plzen-sever/obec-zihle/prodej/"><strong>Prodej penzionu Žihle</strong></a>
Prodej rodinného domu s potenciálem v atraktivní lokalitě Brno - Žabovřesky
Nabízíme ke koupi cihlový dvoupodlažní rodinný dům v jedné z nejvyhledávanějších brněnských lokalit - v Žabovřeskách. Dům stojí na pozemku o výměře…
Prodej rodinného domu v Žebětíně, Brno, 222m2 uřitná plocha + pozemek 1786 m2.
Prodej rodinného domu se zahradou Brno-Žebětín Nabízíme k prodeji prostorný patrový rodinný dům o užitné ploše 222 m s velkorysým pozemkem o…
Prodej rodinného domu Brno-město, Komín na Eurobydleni.cz