Makléř: Ing. David Raus
Telefon: 777 593 ...
E-mail: raus@da ...
Zobrazit celý kontaktTelefon: 777 593 888
E-mail: raus@davidraus.cz
Nemovitost nabízí
David Raus realitní služby
Halouzkova 840, Rajhrad
Zobrazit kontakt na RK777 593 888
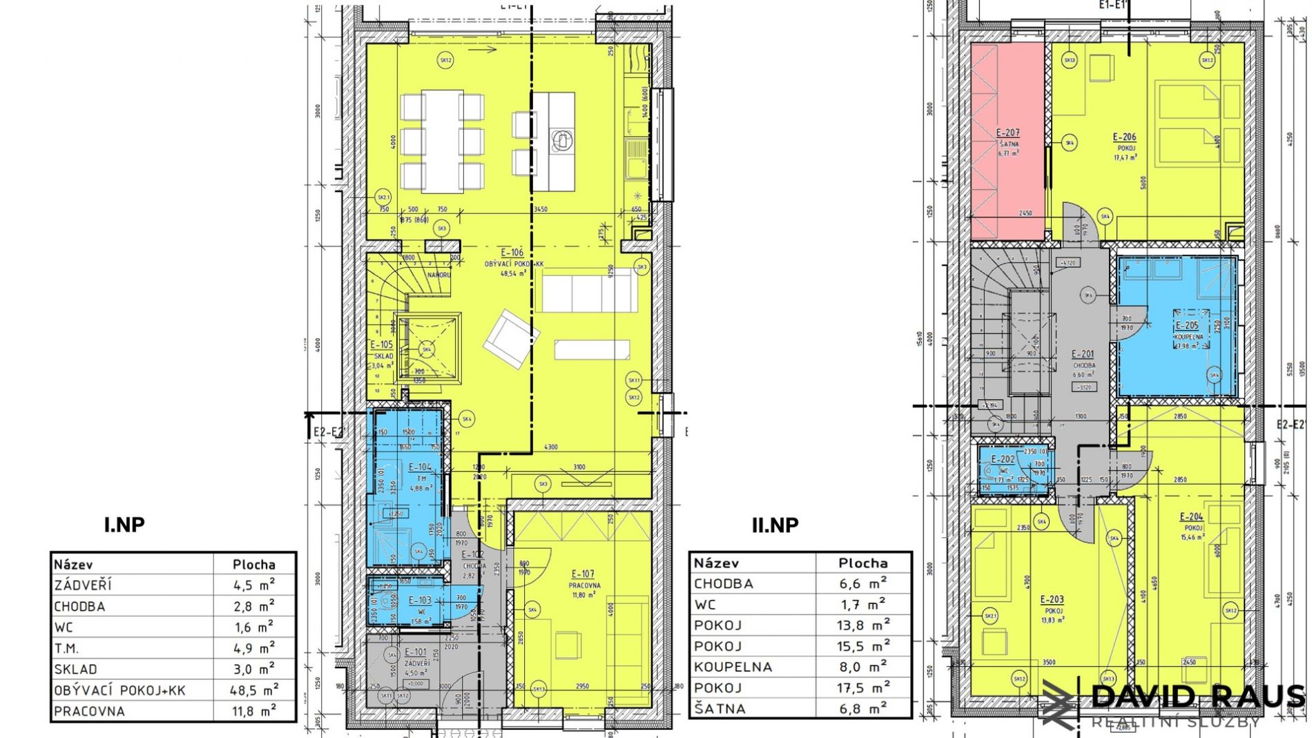
Nabízím k prodeji rodinný dům (č.2) o dispozici 5+kk, se zastřešeným parkovacím stáním na vlastním pozemku (283 m), ve městě Rajhrad. Rodinný dům o podlahové ploše 175 m je ve fázi výstavby a je jeden ze čtyř nízkoenergetických rodinných domů na ulici Syrovická, v Rajhradě. Energetické náročnost domu je klasifikována do třídy A - mimořádně úsporné. VÝSTAVBA ZAHÁJENA 9/2025 Dispozice domu: 1.NP Vstupní dveře vedou do zádveří ( 4,5 m), vedoucí do chodby (2,8 m) s přístupem na samostatné WC ( 1,6 m), do technické místnosti ( 4,9 m), pracovny (11,8m), skladu (3,0 m)a otevřeného obývacího pokoje s kuchyňským koutem ( 48,5 m). Ústředním prvkem propojující jednotlivá patra domu je schodiště z obývacího pokoje. 2.NP Do druhého patra domu vystoupáme po schodišti na chodbu ( 6,6 m), kde se nachází tři samostatné pokoje, které mohou sloužit jako samostatné dva dětské pokoje ( 13,8m, 15,5m) a ložnice (17,5m) ze které vedou dveře do šatny (6,8m). K dispozici na patře je prostorná koupelna ( 8,0 m) a samostatné WC ( 1,7m). Základní informace : - výstavba RD na klíč (5+kk ) - podlahová plocha domu 175 m - užitná plocha domu 147 m - výměra pozemku 283 m - fotovoltaická elektrárna - podlahové teplovodní topení - tepelné čerpadlo - zastřešené parkovací stání - perfektní občanská vybavenost a dostupnost do města Brna - atraktivní lokalita pro bydlení - stavba zahájena 9/2025 Veškerý právní servis zajištěn. Nabízím možnost financování. Pro více informací kontaktujte makléře. <a href="https://www.eurobydleni.cz/domy/rodinny-dum/breclav/obec-klobouky-u-brna/prodej/"><strong>Prodej rodinného domu Klobouky u Brna</strong></a>
Prodej rodinného domu 5+kk s pozemkem (283 m2), ul. Syrovická, Rajhrad (2)
Nabízím k prodeji rodinný dům (č.2) o dispozici 5+kk, se zastřešeným parkovacím stáním na vlastním pozemku (283 m2), ve městě Rajhrad. Rodinný dům o…
Prodej RD Rajhrad, 5+1, bazén, klimatizace
Nabízíme k prodeji samostatně stojící RD 5+1 v Rajhradě, skvělá dostupnost pouze 5km od Brna. Zastavěná plocha domu 107 m, užitná plocha domu 145 m,…
Prodej rodinného domu Rajhrad na Eurobydleni.cz