Makléř: Raus David
Telefon: 777 593 ...
E-mail: raus@da ...
Zobrazit celý kontaktTelefon: 777 593 888
E-mail: raus@davidraus.cz
Nemovitost nabízí
David Raus realitní služby
Jiříkovského 260/20, 602 00 Brno
Zobrazit kontakt na RK
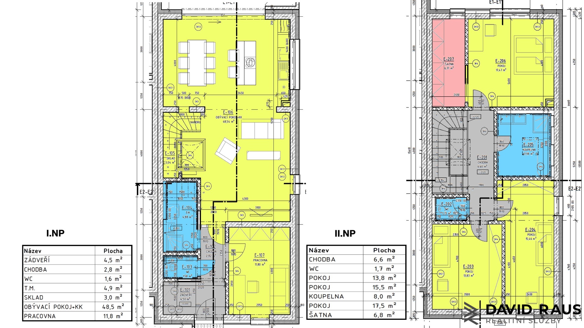
Nabízím k prodeji rodinný dům (č.2) o dispozici 5+kk, se zastřešeným parkovacím stáním na vlastním pozemku (283 m2), ve městě Rajhrad. Rodinný dům o podlahové ploše 175 m2 je ve fázi výstavby a je jeden ze čtyř nízkoenergetických rodinných domů na ulici Syrovická, v Rajhradě. Energetické náročnost domu je klasifikována do třídy A - mimořádně úsporné. VÝSTAVBA ZAHÁJENA 9/2025 Dispozice domu: 1.NP Vstupní dveře vedou do zádveří ( 4,5 m2), vedoucí do chodby (2,8 m2) s přístupem na samostatné WC ( 1,6 m2), do technické místnosti ( 4,9 m2), pracovny (11,8m2), skladu (3,0 m2)a otevřeného obývacího pokoje s kuchyňským koutem ( 48,5 m2). Ústředním prvkem propojující jednotlivá patra domu je schodiště z obývacího pokoje. 2.NP Do druhého patra domu vystoupáme po schodišti na chodbu ( 6,6 m2), kde se nachází tři samostatné pokoje, které mohou sloužit jako samostatné dva dětské pokoje ( 13,8m2, 15,5m2) a ložnice (17,5m2) ze které vedou dveře do šatny (6,8m2). K dispozici na patře je prostorná koupelna ( 8,0 m2) a samostatné WC ( 1,7m2). Základní informace : - výstavba RD na klíč (5+kk ) - podlahová plocha domu 175 m2 - užitná plocha domu 147 m2 - výměra pozemku 283 m2 - fotovoltaická elektrárna - podlahové teplovodní topení - tepelné čerpadlo - zastřešené parkovací stání - perfektní občanská vybavenost a dostupnost do města Brna - atraktivní lokalita pro bydlení - stavba zahájena 9/2025 Veškerý právní servis zajištěn. Nabízím možnost financování. Pro více informací kontaktujte makléře.
Prodej RD Rajhrad, 5+1, bazén, klimatizace
Nabízíme k prodeji samostatně stojící RD 5+1 v Rajhradě, skvělá dostupnost pouze 5km od Brna. Zastavěná plocha domu 107 m, užitná plocha domu 145 m,…
Prodej rodinného domu 5+kk s pozemkem (288 m), ul. Syrovická, Rajhrad (3)
Nabízím k prodeji rodinný dům (č.3) o dispozici 5+kk, se zastřešeným parkovacím stáním na vlastním pozemku (288 m), ve městě Rajhrad. Rodinný dům o…