Makléř: Mgr. Ponížil Jiří
Telefon: 605 275 ...
E-mail: ponizil ...
Zobrazit celý kontaktTelefon: 605 275 044
E-mail: ponizil@fiedlerreality.cz
Nemovitost nabízí
FIEDLER REALITY s.r.o.
Charvatská 1385/8, 62800 612 00 Brno
Zobrazit kontakt na RK604 215 282
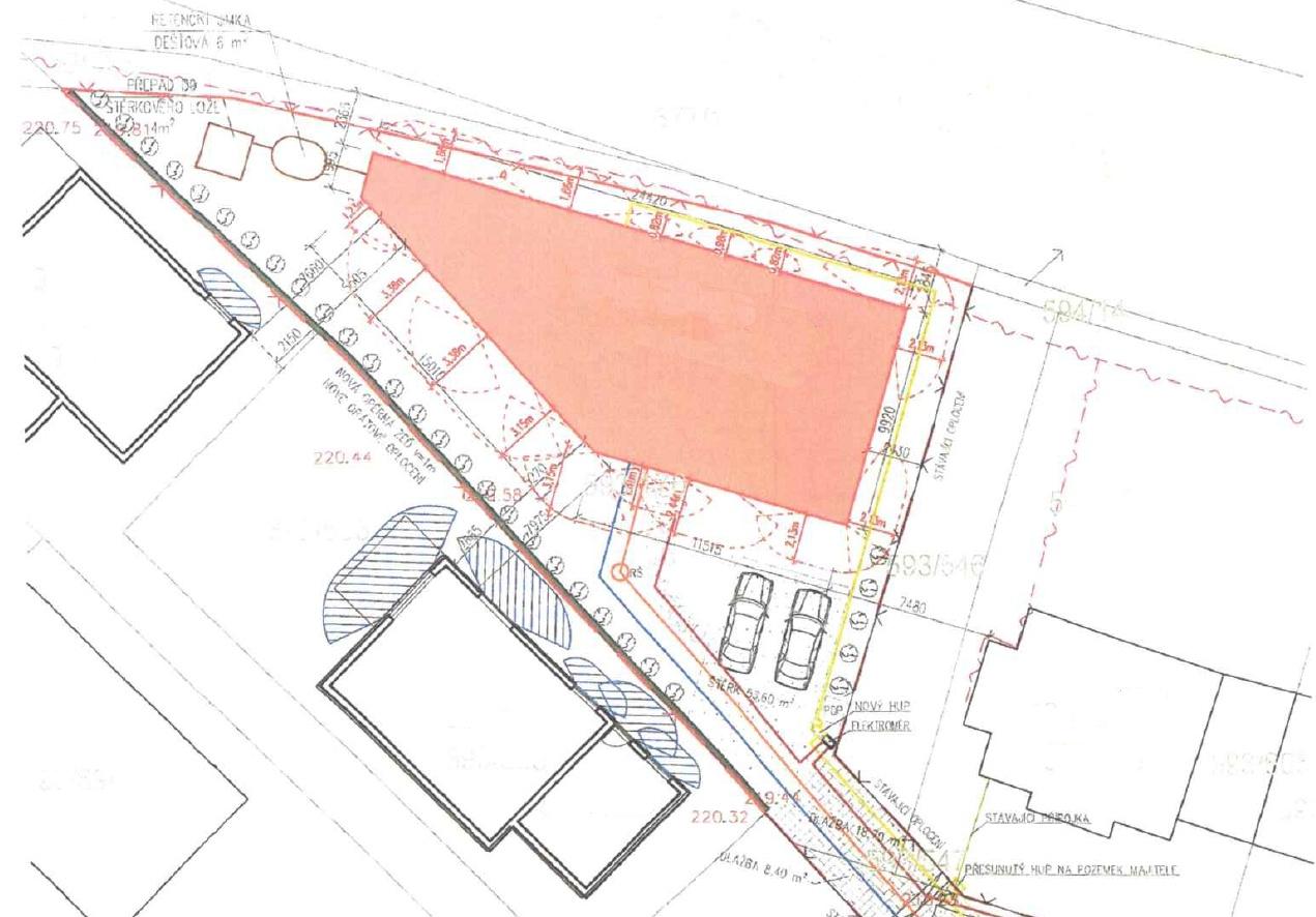
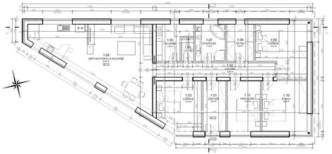
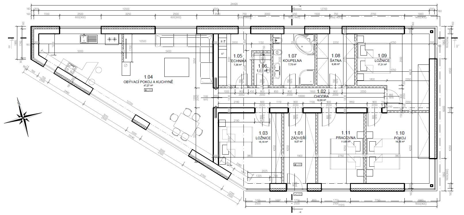
Novostavba RD 5+kk blízko Brna (dokončeno 10/2024) na pozemku cca 637 m2 . Dům je jednopodlažní, samostatně stojící s pultovou a částečně plochou střechou, zastavěná plocha domem cca 191 m2. V domě je zádveří, chodba, obývací pokoj s kuch. koutem, dva pokoje, ložnice, koupelna s WC, vanou a sprchovým koutem, samostatné WC, technická místnost. Na pozemku je prostor pro dvě parkovací místa u domu. Dům je napojen na elektřinu, vodovodní, kanalizační a plynovodní přípojku. Dešťové vody jsou svedeny do jímky na dešťovou vodu + vsak na vlastním pozemku. V domě je plynový kotel BAXI (v technické místnosti) s rozvody podlahového vytápění a rekuperační jednotka. Rajhrad se nachází cca 13 km jižně od centra města Brna a 7 km od hranice městské části Brno - Přízřenice. Občanská vybavenost: Česká pošta - pobočka Rajhrad, mateřská škola, základní škola, Střední zahradnická škola, restaurace (např.: Cafe Benedictine bar, Restaurace U Kašny) TESCO supermarket, Památník písemnictví na Moravě v prostorách benediktinského kláštera v Rajhradě. Dostupnost IDS: vlak S3 - Brno hl. nádraží, autobus č. 504 - Ústřední hřbitov, autobus č. 505 - Modřice, autobus č. 511 - Modřice. <a href="https://www.eurobydleni.cz/byty/3_kk/brno/obec-styrice/prodej/"><strong>Prodej bytu 3+kk Brno-město, Štýřice</strong></a>
Novostavba RD s garáží blízko Brna
Novostavba RD 4+kk s garáží a terasou blízko Brna (dokončeno 10/2024) na pozemku cca 590 m2 . Dům je jednopodlažní, samostatně stojící se sedlovou…
Prodej rodinného domu 5+kk s pozemkem (283 m2), ul. Syrovická, Rajhrad (2)
Nabízím k prodeji rodinný dům (č.2) o dispozici 5+kk, se zastřešeným parkovacím stáním na vlastním pozemku (283 m2), ve městě Rajhrad. Rodinný dům o…
Prodej rodinného domu Rajhrad na Eurobydleni.cz