Makléř: Dufek Milan
Telefon: 800 100 ...
E-mail: dufek@v ...
Zobrazit celý kontaktTelefon: 800 100 994, 774 559 093
E-mail: dufek@vatoreal.cz
Nemovitost nabízí
Vatoreal
Na Loučkách 1202/41, Kuřim
Zobrazit kontakt na RK
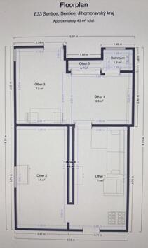
Nabízíme k prodeji rekreační pozemek o výměře 2 175 m² s chatou v klidné části obce Sentice lokalita Padělky. Pozemek se nachází na okraji obce v krásném přírodním prostředí a nabízí nádherný výhled do okolní krajiny. Jedná se o ideální místo pro odpočinek, rekreaci, zahradničení nebo víkendové pobyty mimo ruch města. Díky své velikosti poskytuje dostatek prostoru i soukromí. Základní informace: celková výměra pozemku 2 175 m² šířka pozemku cca 25 m a 26 m délka pozemku cca 91 m a 83 m mírně svažitý terén pozemek je oplocen stavba na pozemku Na pozemku se nachází zlegalizovaná rekreační stavba: zastavěná plocha cca 43 m² rozměr cca 8,15 × 5,5 m užitná plocha cca 37 m² Stavba může sloužit jako víkendová chata nebo zázemí pro rekreační pobyt. Inženýrské sítě: elektřina 240/400 V (3 fáze) přivedena do stavby vlastní studna cca 12 m hluboká s celoroční vodou vydané stavební povolení na nový vrt studny vydané stavební povolení na domovní ČOV včetně zasakování Přístup: Pozemek je přístupný z horní části přes bránu. Příjezd k pozemku je zajištěn po obecní polní komunikaci s celoroční sjízdností. Lokalita: Pozemek se nachází v klidné lokalitě na okraji obce, v blízkosti přírody, což nabízí ideální podmínky pro relaxaci, procházky, cykloturistiku, houbaření nebo zahradničení. Dle platného územního plánu je pozemek veden v ploše venkovského bydlení, což může do budoucna představovat také zajímavou příležitost pro výstavbu rodinného domu nebo investici do rozvoje pozemku. <a href="https://www.eurobydleni.cz/byty/1_1/trebic/obec-jemnice/prodej/"><strong>Prodej bytu 1+1 Jemnice</strong></a>
Prodej chaty, 25 m2, Mokrá-Horákov
Nabízíme menší dvoupodlažní chatu v lokalitě Mokrá-Horákov, vhodnou k rekreaci i pro rybáře. V okolí se nachází rybníky, lesy, louky a potoky,…
Prodej chalupy Brumov, Brno venkov
Nemovitost s příběhem, potenciálem a budoucí hodnotou. V klidné a příjemné obci Brumov nabízíme k prodeji samostatně stojící chalupu, která…
Prodej chaty Sentice na Eurobydleni.cz