Makléř: Ing. Radomír Šteco
Telefon: 725 573 ...
E-mail: steco@s ...
Zobrazit celý kontaktTelefon: 725 573 820
E-mail: steco@stecoreality.cz
Nemovitost nabízí
Šteco Reality
Stavební 1454, Třebíč
Zobrazit kontakt na RK
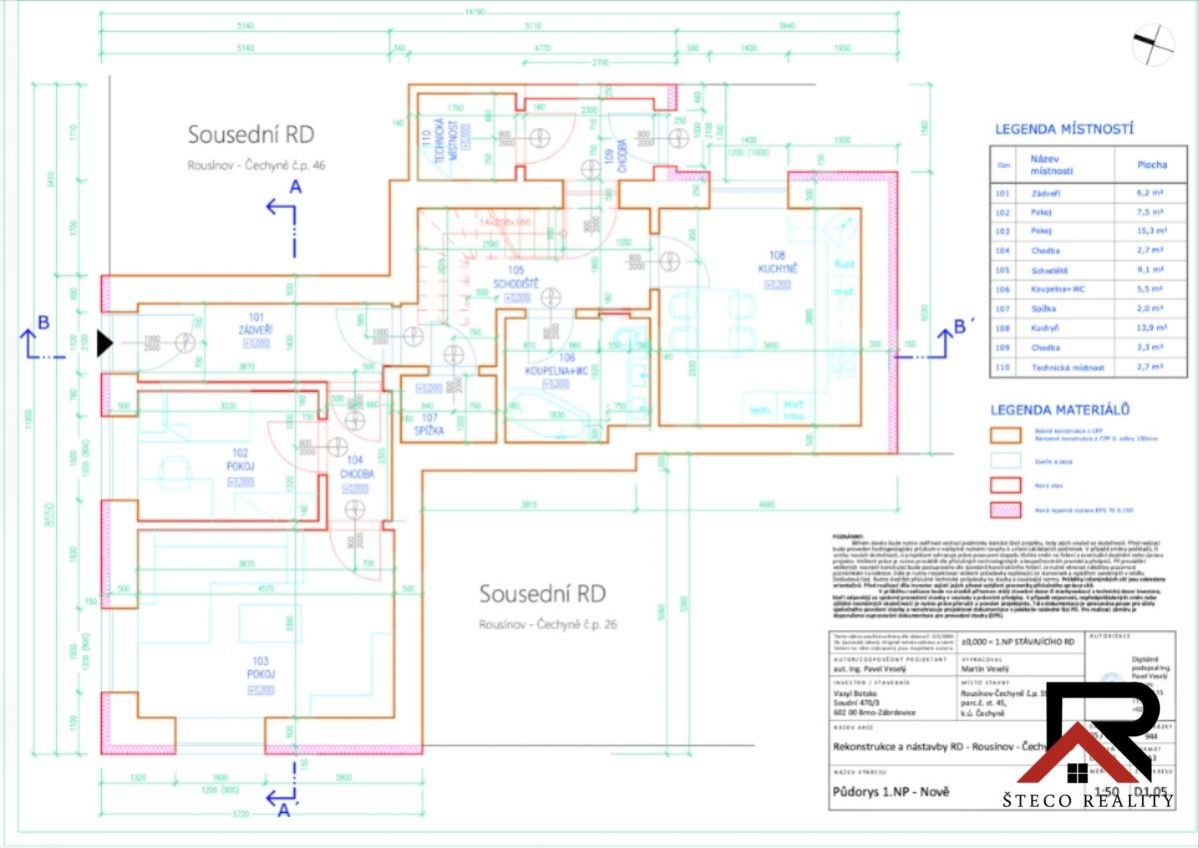
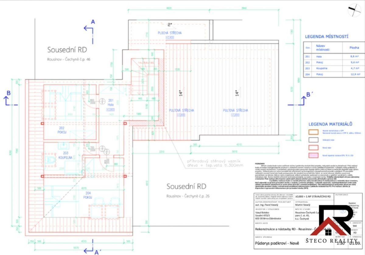
Nabízíme k prodeji rodinný dům určený k rekonstrukci v klidné části obce Čechyně u Rousínova, okres Vyškov. Nemovitost je připravená na stavební úpravy, stavební povolení k dané úpravě je již zažádáno na stavebním úřadě. Součástí prodeje je stavební dokumentace na moderní rodinný dům 4+1 se dvěmi koupelnami. Součástí projektu je také napojení na obecní vodovod a kanalizaci. Součástí projektu je také zřízení dvou parkovacích míst na vlastním pozemku. V domě je již částečně výměna elektroinstalace, součástí prodeje je také materiál určený na budoucí fasádu. Dle projektové dokumentace se rozpočet na dělání domu pohybu v rozmezí 2,2 až 2,5 milionu korun v závislosti na materiálech budoucího majitele. K rekonstrukci je možné využít dotaci, kterou vám rádi pomůžeme vyřídit. V případě zájmu nás neváhejte kontaktovat pro bližší informace či prohlídku. <a href="https://www.eurobydleni.cz/byty/4_1/liberec/obec-liberec/prodej/"><strong>Prodej bytu 4+1 Liberec</strong></a>
Prodej, Rodinný dům, Rousínov
Nabízíme k prodeji krásný rodinný dům o dispozici 5+kk s užitnou plochou 198 m2, situovaný v klidné řadové zástavbě v obci Kroužek u Rousínova. Dům…
Rousínov, RD 5+kk, 140 m, zahrada rodinný dům
Lukrativně nabízíme moderní rodinný dům z roku 2018 v centru Rousínova, který spojuje klidnou atmosféru, velkorysý pozemek a výbornou dostupnost do…
Prodej rodinného domu Rousínov na Eurobydleni.cz