Aktuálně můžete v lokalitě Brno vybírat z nabídky 51 domů.
Přehled nemovitostí: pronájem domy > rodinné domy Zpět na přehled nabídek

Pronájem vily 9+1, Brno, Dolní Heršpice, CP 230m2, pozemek 370m2

370 m2

neuvedeno

C - Úsporná

40

26.01.2026

Cena: na dotaz v RK
Poznámka k ceně: Info o ceně v RK + inkaso + kauce 1

Poslat dotaz k nabídce
Zásady používání osobních údajů

Prodejce

Makléř: Kvasnica Roman

Telefon: 604 964 ...

E-mail: reality ...

Zobrazit celý kontakt

Nemovitost nabízí

Roman Kvasnica realitní makléř

Skalní 503/5, 64200 Brno-město

romankvasnica.cz/

Zobrazit kontakt na RK

Zobrazit všechny nabídky RK

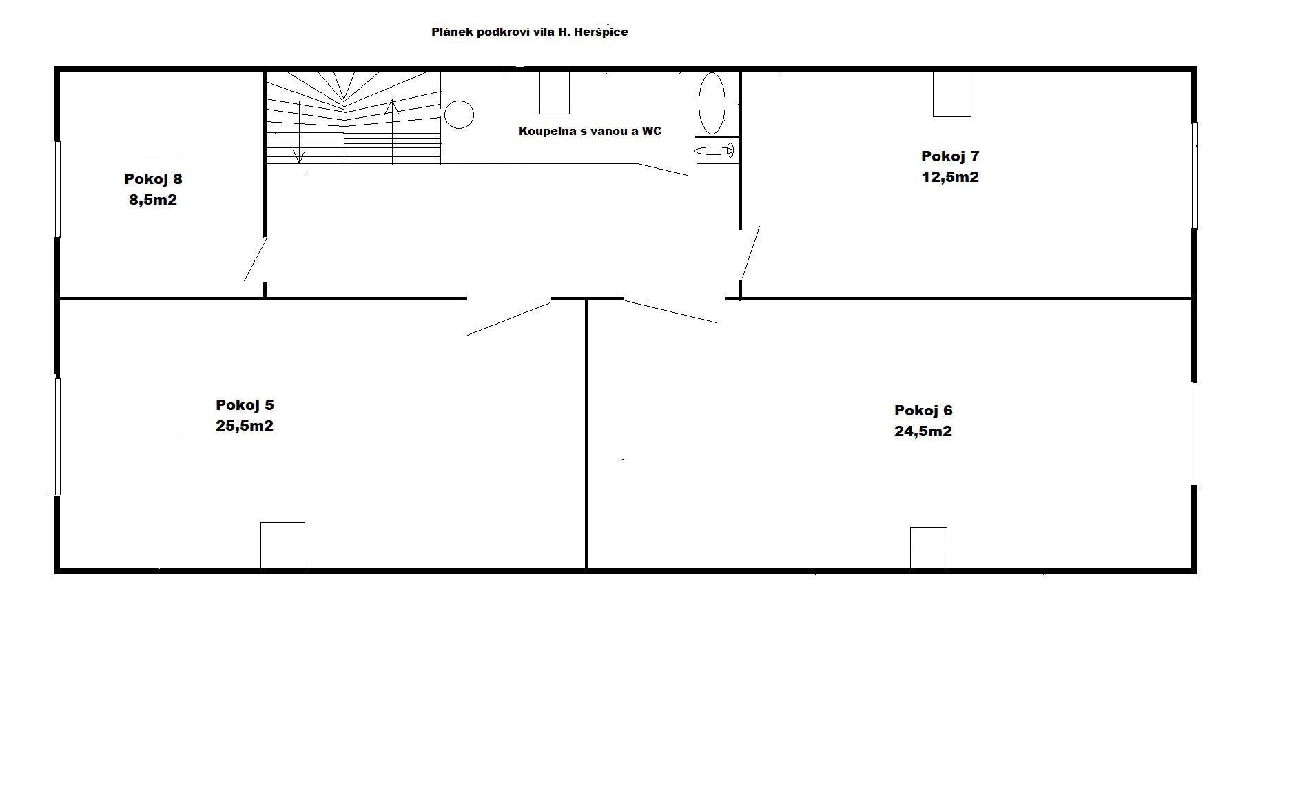
REZERVACE pronájmu zařízenou pěknou vilu pro bydlení, nebo jako kanceláře s dostatkem parkovacího místa na vlastním pozemku, což jistě ocení zákazníci, či rodinní příslušníci. Vila se nachází v jižní části Brna, Dolní Heršpice při ul. Havránkova. Vila je po kompletní rekonstrukci s úžasnou dispozicí 9+kk a PP cca- 230 m2 rozloženou na 3.podlaží . Zahrada nabízí 250 m2. Nemovitost se nachází v klidné části s výbornou dostupností. Vhodné k dlouhodobému i krátkodobému pronájmu I.NP. nabídne velkou prosvětlenou halu, jídelní část, propojenou s kuchyňským koutem, který lze oddělit od obývací části posuvnými dveřmi, dále technickou místnost s pl. kombin. kondenzačním kotlem, koupelnu s whirpool. vanou a pračkou a WC. Prostorné zádveří s chodbou umožňující samost. vstupy do jednotl. místností se schodišťovou šachtou spojující jednotl. patra. Dům má samost. vchod i vstup zmíněnou halou. Celý pozemek je oplocen a opatřen bránou na dálkové ovládání i samost. vstupem.Odkaz na videoprohlídku, pokud se vám nezobrazuje: https://youtu.be/z_OQvXt3YHA?si=KwwP1C4ZslnTGKcP II.NP. se chodbou se dostanete do 4. neprůchozích pokojů, dále do koupelny s whirpool. vanou a sprch. koutem přípojkou na pračku a samost. WC. 2. Pokoje jsou s terasou, nebo francouzským balkónem. Podkroví- přístupné po centrálním schodišti se 4-mi pokoji se samost. vstupy -velkou koupelnou s vanou, WC a přípojením na pračku. Nad podkrovím se nachází velký úložný prostor přístupný z chodby půdním vstupem. Pozemek kolem vily nabízí parkování pro čtyři auta, zaparkoval by tam bez problémů i kamionový návěs, za vilkou je kovový uzamykatelný sklad 5 m2, terasami i venkovní betonový gril. Vila prošla rekonstrukcí nabídne především klid, myčku, novou pračku, novou velkou ledničku, vařidlovou desku, vestavnou troubu, bezpečnostní vnitřní systém se zabezpečovacím panelem, podlahové vytápění s regulací na chodbách a v kuchyni, radiátory v celém domě, internet, koupelna na každém patře i v podkroví. Zast. MHD BUS nedaleko. Energie, dle počtu osob-budou převedeny na vás a tak si sami pohlídáte spotřebu + kauce. Vila je volná ihned. Nezapomeňte si objednat prohlídku u makléře <a href="https://www.eurobydleni.cz/komercni-nemovitosti/skladovaci-prostory/chomutov/obec-chomutov/pronajem/"><strong>Pronájem skladu Chomutov</strong></a>




Pronájem rodinného domu Brno-město, Dolní Heršpice na Eurobydleni.cz


Nahoru