Makléř: Lukáš Michna
Telefon: 777 231 ...
E-mail: michna@ ...
Zobrazit celý kontaktTelefon: 777 231 222
E-mail: michna@michnareality.cz
Nemovitost nabízí
MICHNA REALITY & PARTNEŘI, s.r.o.
Sochorova 3226/40, 616 00 BRNO - ŽABOVŘESKY
Zobrazit kontakt na RK
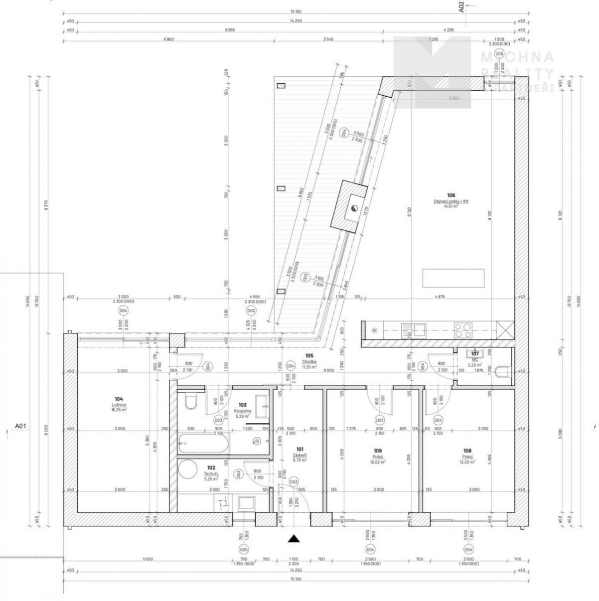
V zastoupení vlastníka nemovitosti Vám nabízíme k prodeji rodinný dům o dispozici 4+kk ve fázi hrubé stavby, nacházející se v klidné části obce Újezd u Rosic s výhledem do volné krajiny. Celková velikost pozemku činí 405 m2. Řešení napojení na inženýrské sítě dle projektu - elektřina, voda, kanalizace. Projekt domu nabízí moderní jednopodlažní řešení s důrazem na praktičnost, otevřený obytný prostor a krytou terasu. Technologie vytápění - tepelné čerpadlo vzduch - voda. Solární panely. Projektová dokumentace k dispozici na vyžádání. Dům je ideální pro rodinné bydlení v klidném prostředí s dobrou dostupností do okolních měst. Lokalita je vyhledávaná pro klidné prostředí, dobrou dopravní dostupnost a blízkost přírody. Obec se nachází přibližně 11 km od Náměště nad Oslavou a cca 25km od Brna, například do obchodního centra Campus v Bohunicích. Tento pozemek s rozestavěnou stavbou představuje ideální příležitost pro dokončení rodinného domu bez nutnosti začínat od nuly s veškerými povoleními. Pro více informací či prohlídku nemovitosti neváhejte kontaktovat realitního makléře - Lukáš Michna MICHNA REALITY & PARTNEŘI, s.r.o. <a href="https://www.eurobydleni.cz/domy/rodinny-dum/sokolov/obec-jindrichovice/prodej/"><strong>Prodej rodinného domu Jindřichovice</strong></a>
Prodej, Rodinný dům, Medlov
Nabízíme jedinečnou možnost stát se majitelem tohoto moderního rodinného domu v části obce Medlov, okres Brno-venkov. Dům je ve fázi před dokončením…
Prodej, Rodinný dům, Pohořelice
Exkluzivní nabídka prodeje novostavby rodinného domu v malebné lokalitě Pohořelic - Nové Vsi, pouhých 25 km jižně od Brna. Tento moderní dům je…
Prodej rodinného domu Újezd u Rosic na Eurobydleni.cz