Makléř: Rozsypal Karel
Telefon: 602 734 ...
E-mail: reality ...
Zobrazit celý kontaktTelefon: 602 734 472
E-mail: reality@multicont.cz
Nemovitost nabízí
Multicont reality
9. května 335/21, 682 01 Vyškov
Zobrazit kontakt na RK517 448 808
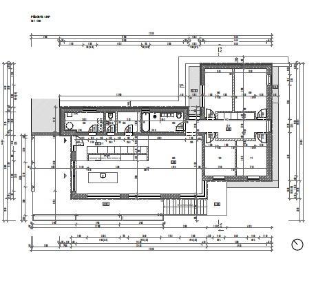
V jedinečném pověření majitelky, dovolujeme si nabídnout rodinný dům se zahradou a další stavební parcelou v místní části Vyškova, v Opatovicích. Dům ve vyhledávané lokalitě, je dispozice 3+1, je v druhé polovině zamýšlených rekonstrukčních prací a již nyní je schopen, po vložení určité míry úprav, použití k bydlení. Neobvyklou zajímavostí nabídky však je, že majitelé měli záměr postavení nového domu nad stávající stavbou, k čemuž však nedošlo, ale již byly zpracovány projektové dokumenty, které přikládáme. Dům stojí pod poměrně prudkým svahem, který tvoří terasovitou zahradu a právě v jedné z teras, mělo vzniknout již vzpomínané nové bydlení, které by svého majitele odměňovalo nádherným výhledem na obec a její okolní přírodu. Stávající dům je v druhé polovině rekonstrukce, je napojen na všechny inženýrské sítě, je lokalizován v klidné ulici obce, dispozice je 3+1, je zde navíc technická místnost, nadzemní klenutý kamenný sklep, avšak co nelze opomenout, je zde navíc možnost, vybudování velkolepé a alternativně i mezonetové půdní vestavby, neboť světlá výška půdy k tomuto přímo vybízí a plocha takové půdy by zvýšila obytnou plochu domu o dalších minimálně 100 m2. Nabídka má opravdu několik alternativ a to od té, kdy se dokončí rekonstrukce stávajícího o objektu, který bude disponovat krásnou, do svahu situovanou terasovitou zahradu s příjezdem i z opačné strany, po nezpevněné cestě, až po možnost mnohogeneračního bydlení, kdy jedna část rodiny bude obývat stávající dům 3+1, další mohou bydlet ve vybudované půdní nástavbě a další část rodiny bude využívat nový dům, postavený na zahradě, na místě, kdy byla stavba domu i stávajícími majiteli, v jejich záměru. Nabízíme dům s mnoha možnostmi využití, je jen na budoucím majiteli, jak s nabízenými možnostmi naloží, každopádně je zde více alternativ, což u podobných nabídek nebývá zvykem, či v technických možnostech, ale je třeba očekávat dům, kde je ještě třeba úprav, čemuž odpovídá i nabízená cenová úroveň. Prohlídky možné po dohodě o termínu, nabízíme účinnou pomoc při optimálním financování nákupu předmětu této nabídky. <a href="https://www.eurobydleni.cz/byty/2_1/kutna-hora/obec-nove-dvory/prodej/"><strong>Prodej bytu 2+1 Nové Dvory</strong></a>
Prodej, domy/rodinný, 240 m2, Nosálovská 81/51, Nosálovice, 68201 Vyškov, Vyškov [ID 73686]
Objevte nemovitost s širokým potenciálem využití Pro koho je tato nabídka ideální? Pro developery hledající menší projekt Pro podnikatele, kteří…
Rodinný dům, prodej, Rychtářov, Vyškov
Prodej rodinného domu s hospodářskou budovou v obci Rychtářov u Vyškova Nabízíme k prodeji rodinný dům v malebné obci Rychtářov, nacházející se na…
Prodej rodinného domu Vyškov na Eurobydleni.cz