Makléř: Kárský Tomáš
Telefon: 800 100 ...
E-mail: info@mm ...
Zobrazit celý kontaktTelefon: 800 100 446
E-mail: info@mmreality.cz
Nemovitost nabízí
M&M reality holding a.s.
Krakovská 1675/2, 110 00 Praha 1
Zobrazit kontakt na RK800 100 446
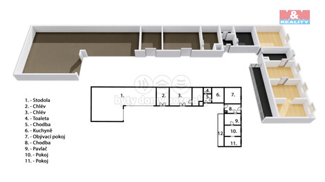
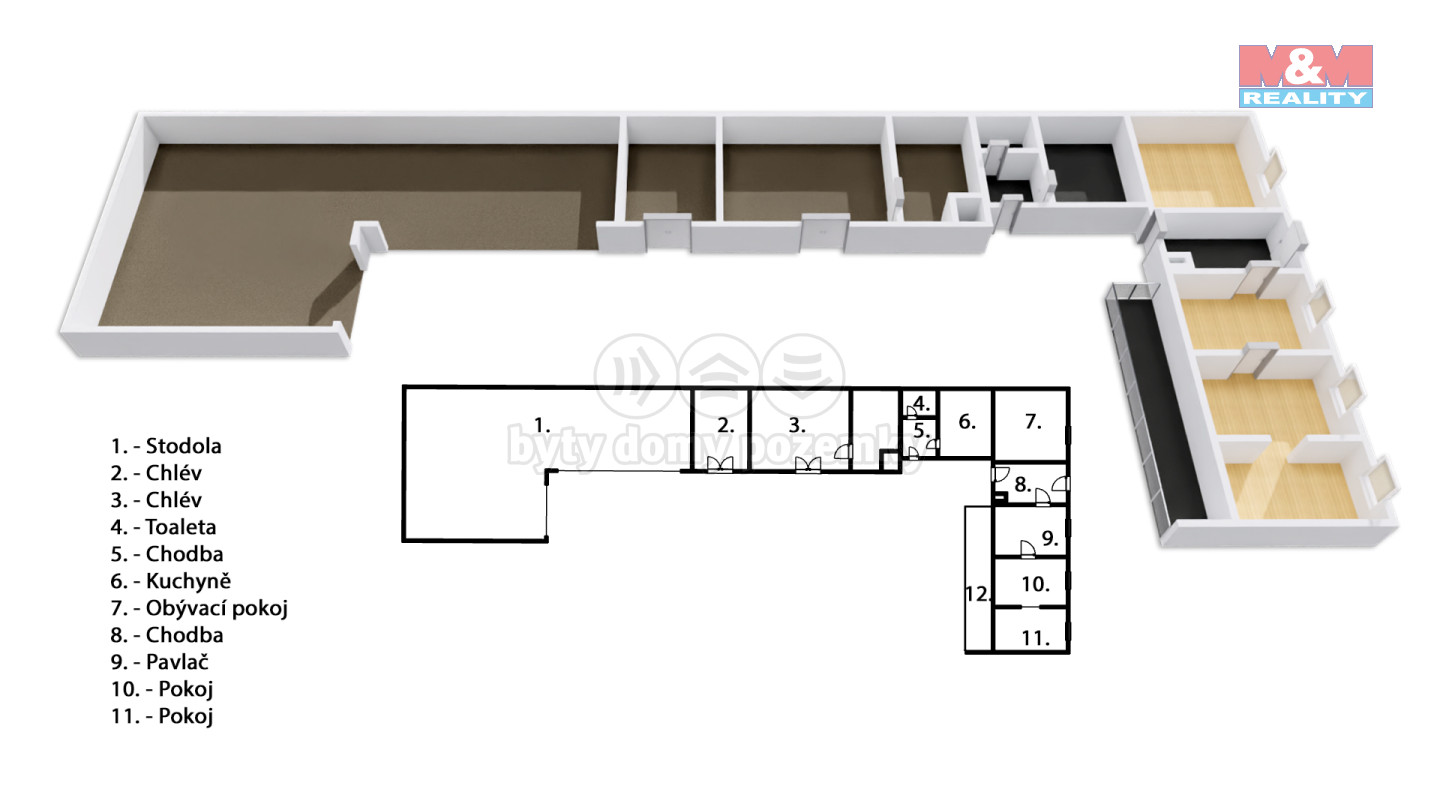
Nabízíme k prodeji rodinný dům ve Velké Roudce u Velkých Opatovic, který spojuje obytné i hospodářské zázemí. Celková užitná plocha domu činí 106 m2, doplněná o 193 m2 nebytových prostor, kam patří tři chlévy, prostorná stodola, sklep a pavlač. Dispozice domu zahrnuje tři pokoje, obývací pokoj, kuchyň, koupelnu, WC a chodby propojující obytnou část. Vytápění je řešeno krbovými kamny s rozvodem do ústředního topení, ohřev vody zajišťuje bojler. Dům je napojen na veřejný vodovod, odpady jsou svedeny do žumpy. Součástí je i stodola a hospodářské části, které lze využít pro chov, sklad nebo přestavbu. Pozemek o výměře 918 m2 tvoří zastavěná plocha a nádvoří. Nemovitost je ideální pro bydlení, rekreaci i hospodářské využití a nabízí široké možnosti úprav, dle potřeb nového majitele. Doporučujeme osobní prohlídku.
Prodej, Rodinný dům, Velké Opatovice
Tento rodinný dům ve Velkých Opatovicích Vás nadchne svou útulností, dostatkem prostoru a jedinečným soukromím. Jedná se o rodinný dům o dvou…
RD Velké Opatovice
Ve výhradním zastoupení majitele nabízíme velice příjemné bydlení v rodinném domě, v klidné obytné zástavbě města Velké Opatovice. Celková plocha je…