Makléř: Bc. Andrea Mašláňová
Telefon: 800 775 ...
E-mail: info-re ...
Zobrazit celý kontaktTelefon: 800 775 577
E-mail: info-reality@swisslifeselect.cz
Nemovitost nabízí
Swiss Life Select Reality
Pobřežní 620/3, 186 00 Praha
Zobrazit kontakt na RKinfo-reality@swisslifeselect.cz
800 775 577
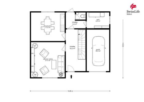
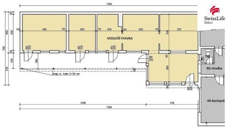
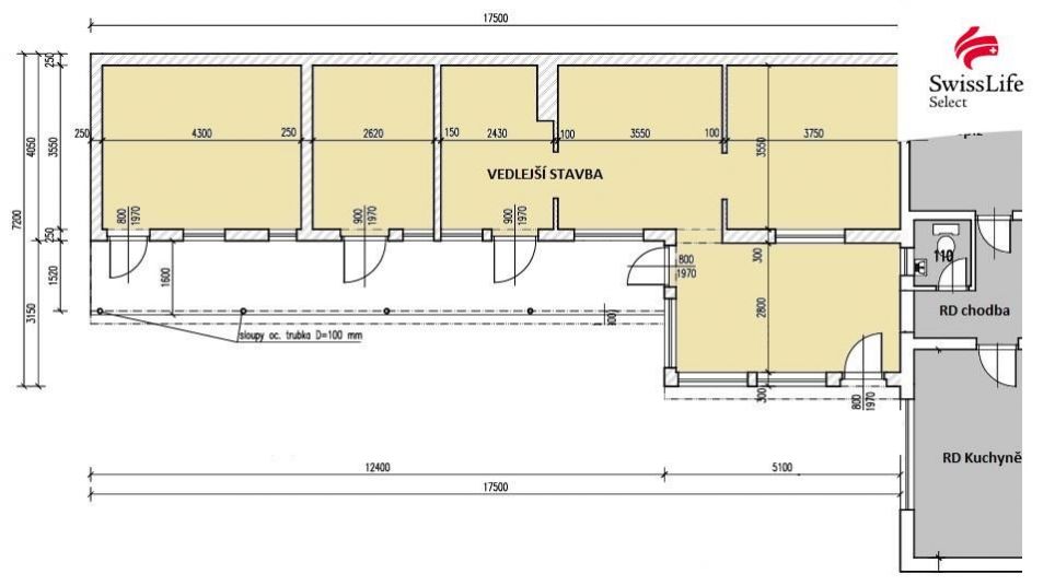
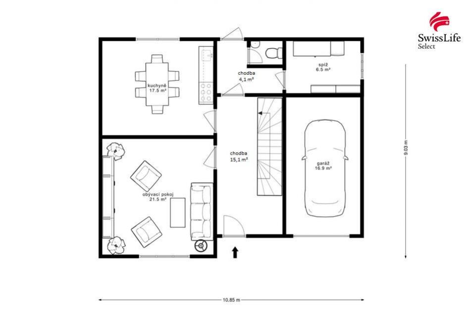
Představte si život v krásné přírodě nedaleko malebných Chřibů. Rodinný dům z roku 1985 s velkou zahradou v obci Skalka u Kyjova čeká na nového majitele, který ocení velkorysý prostor domu. Přijďte objevit potenciál této nemovitosti. Dům je v původním, udržovaném stavu a nabízí čtyři prostorné pokoje, kuchyň, spíž, garáž. K domu je také možné dokoupit nedaleký vinný sklípek. Velká zahrada je ideální pro relaxaci, odpočinek nebo pěstování ovoce, zeleniny a třeba i vína. Na pozemku se nachází studna a hospodářská budova, které zvyšují užitnou hodnotu nemovitosti. Dům je podsklepený, což poskytuje další úložný prostor nebo možnost vybudování hobby místností, například sauny nebo posilovny. Plocha pozemku celkem: 1 266 m Užitná plocha RD: 122 m Sklepní podlaží: 50 m Půda: 70 m Zahrada: 766 m Stavební pozemek: 500 m Zastavěná plocha domu: 98 m Zastavěná plocha vedlejší stavby: 92 m Garáž: 17 m Vinný sklep: 36 m Lokalita Skalka u Kyjova nabízí klidné venkovské prostředí s dobrou dostupností do města Kyjov (9 km), kde najdete veškerou občanskou vybavenost včetně škol, obchodů a zdravotnických zařízení. Autobusová zastávka se nachází přímo u domu. Oblast je známá vinařstvím, folklorními tradicemi a krásnou přírodou Chřibů. Neváhejte a přijďte se podívat na tento dům, který čeká na nového majitele. V případě více zájemců o nemovitost, si majitel vyhrazuje právo prodat nemovitost zájemci s nejvyšší nabídkou. <a href="https://www.eurobydleni.cz/domy/rodinny-dum/litomerice/obec-loveckovice/prodej/"><strong>Prodej rodinného domu Lovečkovice</strong></a>
Prodej rodinného domu 4+1
Nabízíme k prodeji hezký, prostorný rodinný dům o dispozici 4+1 v klidné části Moravského Písku. Dům má celkovou obytnou plochu 150 m a nachází se na…
Prodej novostaveb 4+kk v obci Dubňany
Nové rodinné domy se zahradou Dubňany u Hodonína Nabízíme prodej nových rodinných domů v atraktivní rezidenční lokalitě Dubňany, v docházkové…
Prodej rodinného domu Skalka na Eurobydleni.cz