Aktuálně můžete v lokalitě Brno vybírat z nabídky 70 domů.
Přehled nemovitostí: prodej domy > rodinné domy Zpět na přehled nabídek

Prodej rodinného domu, 201 m2 - Šošůvka

179 m2

201 m2

G - Mimořádně nehospodárná

00025

26.11.2025

Cena: 4799000 CZK / objekt
Poznámka k ceně: včetně DPH, včetně poplatků, včetně provize, včetně právního servisu, cena k jednání 1

Poslat dotaz k nabídce
Zásady používání osobních údajů

Prodejce

Makléř: Korčák Jiří

Telefon: 777 139 ...

E-mail: jiri.ko ...

Zobrazit celý kontakt

Nemovitost nabízí

Jiří Korčák

Olešná 69, Blansko

jirikorcak.cz

Zobrazit kontakt na RK

Zobrazit všechny nabídky RK

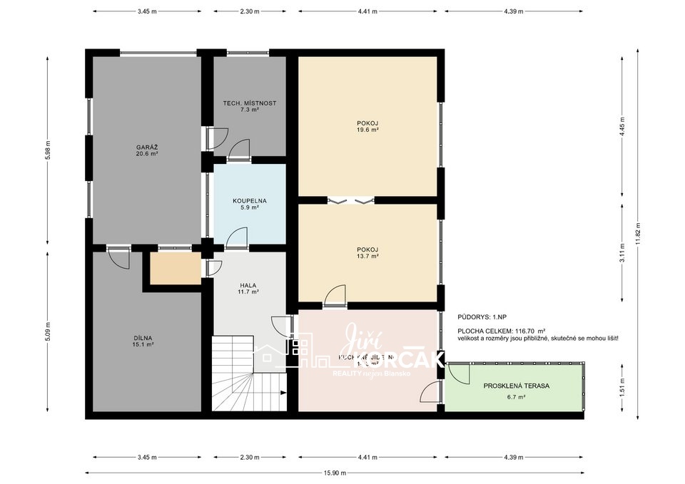
Hledáte rodinný domek do 15 km od Blanska? Nebo stejně tak od Boskovic? A jak by měl vypadat? Co třeba 4+1 s garáží a zahrádkou otočenou ke slunci v klidné obci? Dnes vám nabízíme jedinečnou možnost pořídit si prostorný rodinný dům s užitnou plochou 201 m2 v klidné lokalitě obce Šošůvka. Tento prostorný dům s garáží se nachází na pozemku s výměrou 179 m2 a k tomu má ještě 90 m2 zahrádky. Budova je zděná, částečně podsklepená a nabízí obývací pokoj s ložnicí a kuchyní v přízemí a dva prostorné pokoje se dvěma půdami v podkroví. Zázemí domu jako je koupelna, toaleta, technická místnost, garáž a sklad je dostupné z chodby za kuchyní a stejně tak je z tohoto místa dostupné po dřevěném schodišti i podkroví. Dům je částečně zařízený, což vám usnadní příchod do nového domova. Toto je skvělá příležitost pro ty, kteří hledají prostorné a pohodlné bydlení s možností vlastní zahrádky. Nebojte se změnit svůj život a začít novou kapitolu v tomto útulném domě a nezapomeňte, že na opravu domu, resp. na zateplení, nová okna, tepelné čerpadlo, výměnu kotle nebo na fotovoltaiku lze čerpat státní dotaci. Nabízíme Vám domov plný nových možností a příležitostí! Obec Šošůvka je ideální lokalitou pro milovníky přírody a klidu. Nachází se nedaleko světoznámých jeskyní Moravského krasu a známého zatopeného lomu, který nabízí skvělé podmínky pro letní koupání i zimní otužování. Přijďte se podívat, je tu opravdu hezky. V případě vážného zájmu více klientů, bude vybrán ten s nejvýhodnější nabídkou. Máte nějaké dotazy? Chcete si domluvit prohlídku? Potom mi zavolejte, nebo napište. Budu se na vás těšit na prohlídkách.



Nahoru