Makléř: Ing. Pavlišová Irena
Telefon: 739 208 ...
E-mail: pavliso ...
Zobrazit celý kontaktTelefon: 739 208 107
E-mail: pavlisova@fiedlerreality.cz
Nemovitost nabízí
FIEDLER REALITY s.r.o.
Charvatská 1385/8, 62800 612 00 Brno
Zobrazit kontakt na RK604 215 282
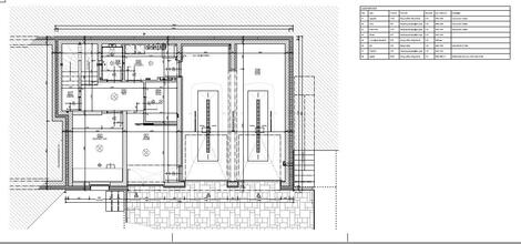
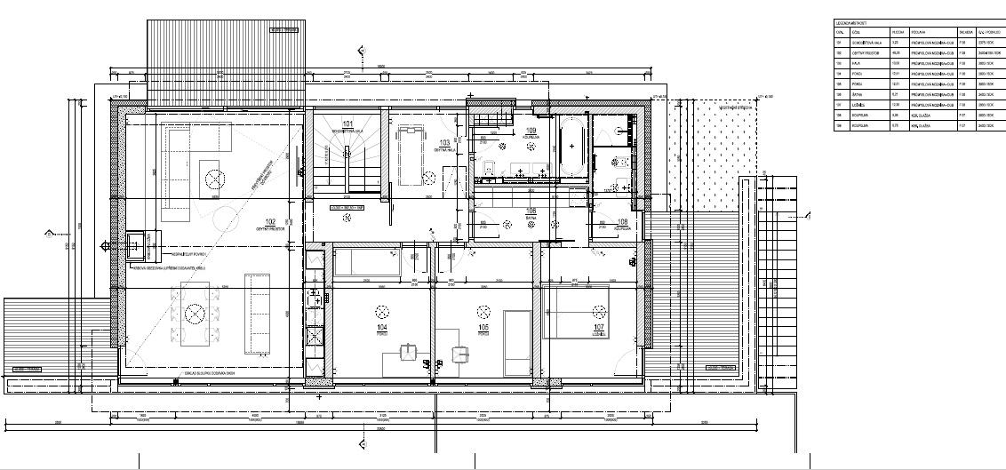
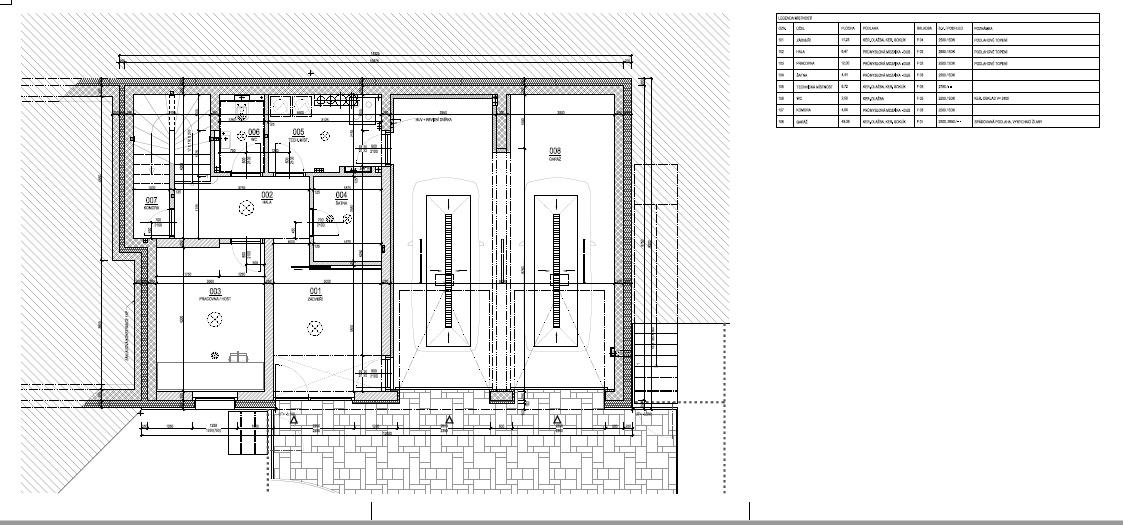
Dovolujeme si vám zprostředkovat koupi novostavby viladomu v rezidenční lokalitě Pod Skalkou v Ochozu u Brna. Jedná se o třetí etapu výstavby, která zahrnuje čtyři rodinné domy v nadstandardním provedení. Dvoupodlažní dům s užitnou plochou 210 m2, zasazený do jižního svahu, je obklopen pozemkem s celkovou výměrou 1033 m2. 1. PP - technické: zádveří, vstupní hala, WC, technická místnost, pracovna, garáž pro dva automobily; 1. NP obytné: hala, obývací pokoj s kuchyňským koutem (48 m2, v obytné části s výškou stropu 4,5 m), dva pokoje (12,5 m2;12,5 m2), ložnice s vlastní šatnou, koupelnou a toaletou (24 m2), koupelna společná s toaletou, vstup na tři terasy a do zahrady. Technický popis: základové pasy + ŽB základová deska, svislé konstrukce 1.PP btb tvarovky, 1.NP keramické tvarovky, strop 1.PP ŽB monolitická deska, strop 1.NP řešen jako součást konstrukce dřevěného krovu, střecha sedlová s keramickou krytinou, omítaná fasáda s částečně dřevěným obkladem ze sibiřského modřínu, provedená v zateplovacím systému ETICS, výplně otvorů hliníkové, velkoplošná skla, předokenní žaluzie. Primárním zdrojem tepla je rekuperační jednotka s integrovaným tepelným čerpadlem s výkonem až 1,3 kW, sekundárním zdrojem tepla je ve všech místnostech elektrické podlahové topení, interiérové schodiště zděné Ytong, dešťová voda svedena do akumulační jímky s bezpečnostním přepadem do vsakovacích bloků. V ceně domu je zahrnuta chytrá domácnost SOMFY, díky které bude možné ovládat žaluzie, garážová vrata, regulaci topení a videotelefon, zabezpečovací systém s napojením dveřních magnetů a sensorů pohybu, venkovní kamery. V ložnici, dětských pokojích a obývacím prostoru budou integrovány klimatizační jednotky. Dům bude prodáván ve stupni dokončení "White Walls" (bez podlahových krytin, obkladů, zařizovacích předmětů, dveří). Venkovní schodiště propojuje úroveň vjezdu a zahrady v úrovní 1.NP. Celý pozemek bude oplocen plotovými 3D panely, uliční oplocení bude tvořit opěrná zeď, zpevněné plochy budou zajišťovat jedno odstavné a jedno parkovací místo. V současné době je dům ve fázi hrubé stavby. V lokalitě Pod Skalkou se k prodeji nabízí i další viladomy a RD, více informací v RK. Obec Ochoz u Brna leží na okraji CHKO Moravský kras v těsné blízkosti lesů, ve vzdálenosti 7 km od hranice městské části Brno - Líšeň. Občanská vybavenost: Česká pošta, praktický lékař pro dospělé, ZŠ a MŠ, Lesní mateřská škola LESINKA, Restaurace Na kovárně, pension Ochozzerie, Bistro - areál Svazarmu, Restaurace Verona, zájmové organizace Skaut, TJ. Dostupnost IDS: autobus 201 - Židenice nádraží, Jedovnice; autobus č. 210 - Hostěnice, Bílovice nad Svitavou (žel. stanice).
Prodej novostavby RD 5+kk s dvojgaráží a velkou zahradou v Ochozu u Brna.
Dovolujeme si vám zprostředkovat koupi novostavby viladomu v rezidenční lokalitě Pod Skalkou v Ochozu u Brna. Jedná se o třetí etapu výstavby, která…
Prodej novostavby viladomu, Ochoz u Brna
Dovolujeme si vám zprostředkovat koupi novostavby viladomu v rezidenční lokalitě Pod Vyhlídkou v Ochozu u Brna. Jedná se o třetí etapu výstavby,…
Prodej rodinného domu Ochoz u Brna na Eurobydleni.cz